Låt oss hjälpa dig att komma igång med ditt nästa byggprojekt.

Vi kan bistå er med allt från bygglovsansökan hela vägen till en färdig byggnad.
Byggnaderna vi designar byggs till så stor del det går med KL-trä och limträ som bas för stommen, dessa är stabila och väldigt anpassningsbara, samt även bra när det kommer till miljöaspekten.

Så vad är KL-trä?

KL-trä, eller Massivträ som det också kallas, är ett konstruktions-material där man med relativt ny teknik har förbättrat egenskaperna för träkonstruktioner. Detta ger ett miljövänligt byggande som tillvaratar kunskap från traditionellt trähusbyggande.
KL-trä är en skiva som består av korslimmat trä som görs med färdiga släta ytor, exakta mått och väldefinierade egenskaper. Med andra ord, allt man kan begära av ett modernt byggmaterial.

KL-trä lämpar sig för alla typer av byggnader och har många unika fördelar i jämförelse med andra material. 
Man bygger snabbt, man bygger bra med hög precision och man får mycket valuta för pengarna.

 KL-trä blocken levereras med färdiga hål för dörrar, fönster och andra öppningar man kan behöva. Allt detta anpassas helt efter kundens önskemål och ger således er en total frihet för egna lösningar.
En annan fördel är att du enkelt kan montera upp det mesta på väggarna utan att  behöva fundera på om väggen klarar av vikten.
När det gäller byggnation utav stall så kan vi även leverera kompletta måttanpassade boxinredningar och allt annan som behövs för att inreda det så bra det bara kan bli.



Ihop med våra samarbetspartners så projekterar, säljer och bygger vi bostadshus och andra byggnader i KL-trä, vi kan även hjälpa er med enbart delar utav era projekt.
Vi kan komma med förslag på totallösningar, lämna hållfasthetsberäkningar, ordna kompletta materialleveranser till en stomme samt se till att den blir monterad. Vi kan även orda leverans på övrigt byggmaterial som krävs för att färdigställa byggnaden.
Vi kan också göra energiberäkningar och komma med förslag på uppvärmningssystem.

Och KL-trä passar som sagt inte enbart till bostadshus, utan det är även ett utmärkt alternativ om ni ska bygga ett stall, ett kontor, en affärslokal, en idrottshallar och de flesta andra byggnader.

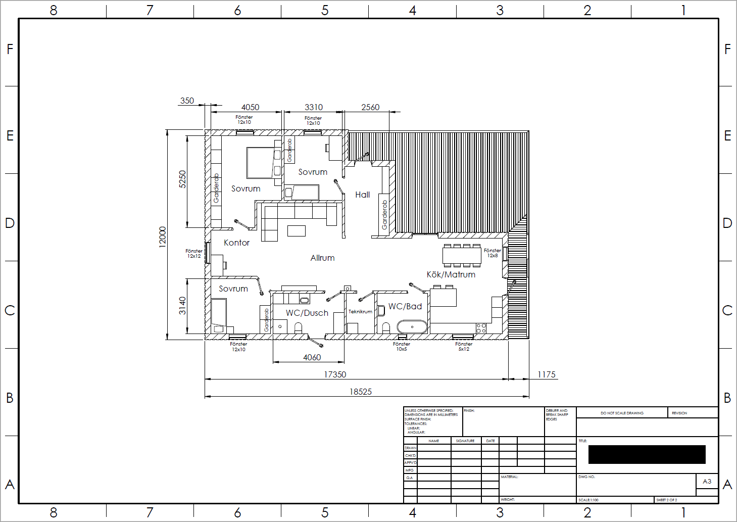
Detta är en planritning som använts vid bygglovsansökan åt en kund.

Planritningen användes vid ansökan om bygglov för utbyggnad utav ett befintlig bostadshus för att visa ett exempel på hur det kan se ut.